- 功能特点
- 技术参数
轻量化设计,体型更轻盈,便于运输、安装维护;
最快3秒起落杆,更高的通行效率,更好的停车体验;
广告画面更换无需专业人士、专业工具,故障率更低,维护成本更低;
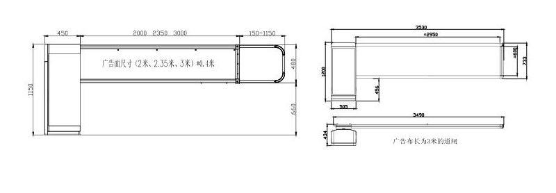
双面大幅广告画面,LED夜间照明,白天、黑夜广告效果均出色;
定时开关装置,定时开/关广告画面LED照明灯光;
闸杆长度可根据需求调节,通用性更强,减少安装、库存风险且便于运输;
采用第三代道闸机芯,一体化设计、编码器限位、二级减速装置;
采用斜支撑方式,提升广告闸杆运行平稳性;
多重保护措施(防砸车保护、电机热保护、抗电涌保护等),极大提高道闸运行的安全性和可靠性;
具备多功能标准接口,方便地感、红外线及收费系统等接入安装使用。


- 上一页:LB-D02 无动力广告道闸
- 下一页:没有了




